コンテンツへスキップ

ライジンリッジ タイプB 3LDK ヴィラ

モダンなエレガンスと機能的なデザインが完璧に融合した、タイプB 3LDKヴィラへようこそ。快適さとスタイルを求めるご家族に最適です。思慮深く設計されたこのレジデンスは、あらゆるニーズに応える広々とした間取りを備え、美しさと実用性の両方を重視する方にとって理想的な住まいです。

主な機能:

  • 広さと間取り:この​2階建てのヴィラは約90.66㎡の広さで、様々な人数のご家族に十分な広さを提供します。インテリジェントなレイアウトは機能性と動線を最大限に高め、家の隅々まで有効活用できるよう配慮されています。

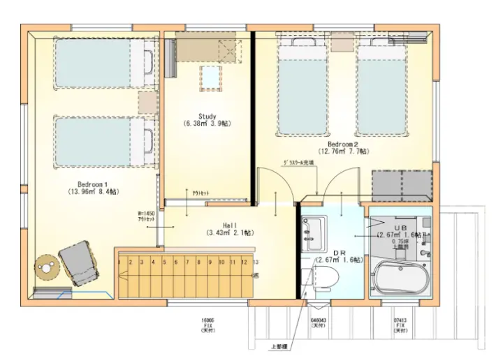
  • 3 つのベッドルーム: ヴィラには設備の整った 3 つのベッドルームがあります。

    • マスター ベッドルーム: ゆったりとしたスペースと自然光が差し込む豪華なマスター スイート。リラックスしてリフレッシュするのに最適です。
    • 追加のベッドルーム 2 室: 家族やゲストに最適な広さで、各部屋は快適さを考慮して設計されています。
  • 専用学習室: 多目的学習室は、仕事や勉強など、生産性を高めるのに最適な環境を提供し、集中できる静かな空間を確保します。

  • オープンキッチンとダイニングエリア:オープンコンセプトのキッチンはダイニングエリアとシームレスにつながり、家族の集まりに温かく居心地の良い雰囲気を醸し出します。モダンな家電と広々としたカウンタースペースを備え、料理を楽しく演出します。

  • 快適なリビングルーム: 広々としたリビングルームは、リラックスと娯楽のために設計されており、長い一日の終わりにくつろげる居心地の良い空間を提供します。

  • 2つのバスルーム:ヴィラには2つのバスルームがあり、

    • バスタブ付きバスルーム: ゆったりとくつろげる静かな空間。贅沢なバスタブを備え、くつろぐのに最適です。
    • シャワー付きバスルーム: 忙しい朝に便利なモダンな設備。
  • ランドリーとユーティリティ ルーム: 実用的な家電製品を備えた専用のランドリー ルームでは家事が楽になり、ユーティリティ ルームでは追加の収納ソリューションが提供されます。

  • 持続可能な特徴: タイプ B ヴィラは、エネルギーコストを削減し、持続可能な生活を促進するソーラーパネルなど、環境に優しい要素を使用して設計されています。

  • 美しく整備された屋外エリア: 屋外には美しく整備された庭園が広がり、屋外でのアクティビティやリラクゼーションに最適な静かな環境を作り出しています。

タイプB 3LDKヴィラは、単なる住まいではありません。自然との繋がりを保ちながら、現代的なライフスタイルを取り入れた、まさにライフスタイルの選択肢です。広々としたデザイン、機能的な間取り、そして環境に配慮した設備を備えたこのヴィラは、快適さ、スタイル、そしてサステナビリティを求めるご家族にとって、まさに理想的なサンクチュアリです。

この素晴らしいヴィラをあなたの新しい住まいにするチャンスをお見逃しなく!ご内覧のご予約は、今すぐお問い合わせください!

デザイン免責事項:

タイプBヴィラのデザインは参考用です。最終的なデザインとレイアウトは、お客様一人ひとりのお好みやご要望に合わせてカスタマイズいたします。お客様一人ひとりのスタイルとニーズに合った、パーソナライズされたリビングスペースづくりをお手伝いするため、包括的なインテリアデザインサービスをご提供しています。ご希望のオプションをご確認いただき、お客様のビジョンを具体化するために、ぜひデザインチームにご相談ください。






RaijinRidge Yonezawa 3LDKVilla
5,760,000.00 5,760,000.00